A PERSISTÊNCIA É O CAMINHO DO ÊXITO. Charlie Chaplin
APARTAMENTO T2+1 EM LISBOA – OPORTUNIDADE! Localização privilegiada – Lisboa – OLAIAS
Descrição
VENDE-SE APARTAMENTO T2+1 EM LISBOA – EXCELENTE OPORTUNIDADE!
Localização privilegiada – Lisboa – OLAIAS
Ideal para famílias, investimento ou habitação própria
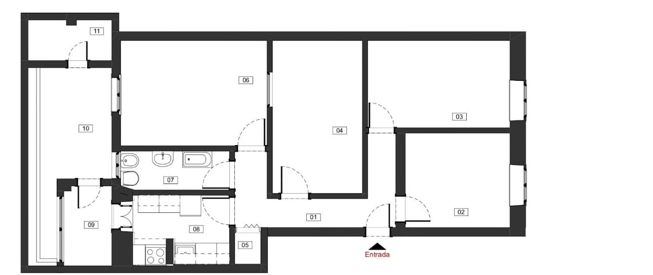
Este espaçoso apartamento, ao nível de uma cave, T2+1 oferece conforto, funcionalidade e excelente localização! Situado numa zona central e bem servida de transportes, comércio e serviços, é uma excelente oportunidade tanto para viver como para investir.
2 Quartos + 1 divisão extra (ideal como escritório ou quarto adicional)
Sala ampla e luminosa
Cozinha
1 Casa de banho
TERRAÇO PRIVATIVO
Próximo de escolas, supermercados, transportes (metro/autocarro)
Potencial de valorização
Preço competitivo – uma oportunidade imperdível em Lisboa!
Visão geral
- Referência 7750
- Preço Sob consulta
- Tipo de Propriedade Apartamento
- Situação da propriedade Comprar, Vendido
- Quartos 3
- Casas de banho 1
- Ano de construção 1988
- Área Útil 84 m2
- Nova construção Não
- Tipologia T3
Contacto
Outros Imóveis
Loja de Rua à Venda – 70m² | Zona da Botica (GUERREIROS) – Loures Loja de rua com 70m², localizada na zona da Botica, em Loures, uma área residencial com bastante movimento e forte potencial de comércio local. Características principais: Área total: 70m² Espaço amplo e versátil, ideal para diversos tipos de negócio 1 instalação […]
Lisboa – Benfica, Lote Urbano para Construção de Habitação | Oportunidade de Investimento
Sob consultaLote Urbano para Construção de Habitação | Oportunidade de Investimento | Lisboa – Benfica Apresentamos uma excelente oportunidade de investimento em uma das zonas mais valorizadas de Lisboa. Este lote de terreno urbano, destinado à construção de Habitação, oferece elevado potencial para desenvolvimento residencial ou comercial, sendo ideal para investidores e promotores que procuram valorização […]
T1 Totalmente Remodelado na Parede – Cascais Apartamento T1 recentemente remodelado, localizado na Parede, concelho de Cascais, numa zona tranquila, muito valorizada, num prédio com elevador. O imóvel apresenta uma remodelação completa em 2025, com acabamentos modernos e funcionais, oferecendo conforto e praticidade. Dispõe de sala luminosa, cozinha moderna, quarto confortável com roupeiro e casa […]
Escritório Exclusivo em Zona Nobre de Lisboa. Oportunidade no Lumiar, Parque dos Príncipes
Sob consultaEscritório Exclusivo em Zona Nobre de Lisboa – Uma Oportunidade Única Localizado no Lumiar, mais concretamente na zona do Parque dos Príncipes, apresentamos um escritório singular, recentemente remodelado, com 80m² de elegância e funcionalidade, distribuídos por 5 salas independentes. Localizado em uma das áreas mais prestigiadas de Lisboa. Este espaço foi pensado para quem busca […]
Oportunidade única: Sua chance de adquirir uma propriedade exclusiva em uma das regiões mais cobiçadas do Alentejo! Localização privilegiada: Situada no coração de Grândola, a quinta oferece um ambiente tranquilo e natural, ideal para quem busca qualidade de vida e contato direto com a natureza. A apenas alguns minutos das praias paradisíacas da Comporta e […]
Bairro de Santa Cruz / Benfica – Moradia T3
Sob consultaMoradia Geminada T3 para Renovação Total em Lisboa – Excelente Potencial! Moradia geminada de 2 pisos, com anexos e um espaçoso quintal, localizada num dos bairros mais carismáticos de Lisboa. Rodeada por uma zona tranquila e de fácil acesso. A propriedade está a precisar de uma renovação total, oferecendo um excelente potencial para se transformar […]